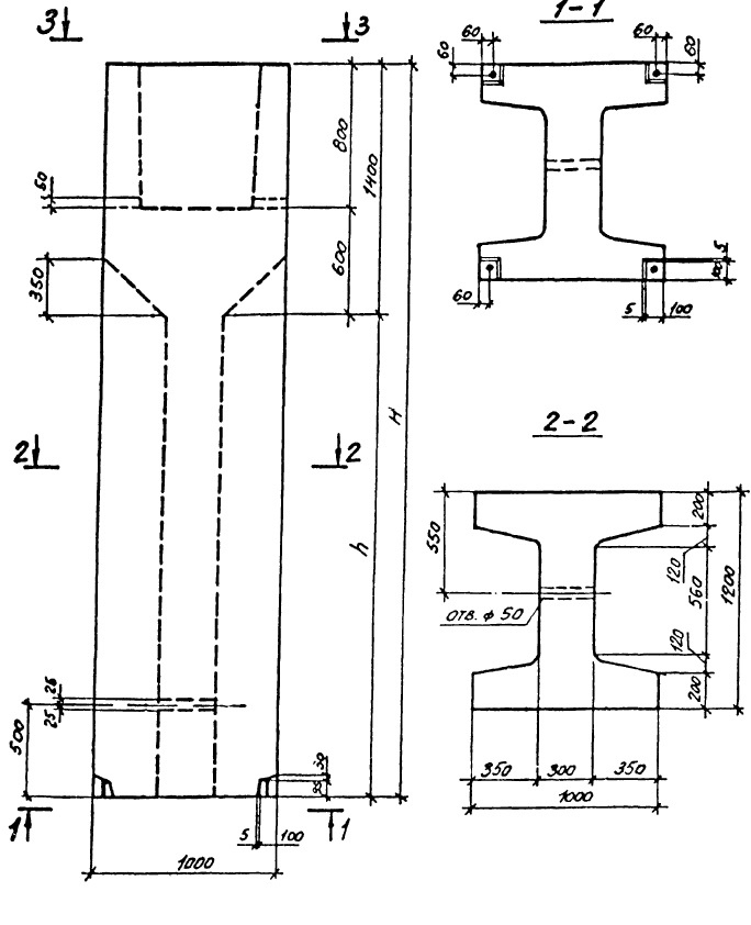
Блок-стакан верхний ВБ 9-10-45-2 представляет собой элемент железобетонных конструкций, который используется для соединения и укрепления бетонных блоков. Он имеет специальную форму, которая обеспечивает надежное соединение блоков между собой, образуя прочную и устойчивую конструкцию. Блок-стакан верхний ВБ 9-10-45-2 изготавливается из высококачественных материалов, что обеспечивает его долговечность и надежность.
Блок-стакан верхний ВБ 9-10-45-2 широко используется в строительстве для создания железобетонных конструкций различного назначения. Он применяется при возведении зданий, мостов, туннелей, дорожных сооружений и других объектов. Блок-стакан верхний ВБ 9-10-45-2 обеспечивает прочное и надежное соединение бетонных блоков, что позволяет создавать устойчивые и долговечные конструкции. Этот элемент является необходимым компонентом при строительстве различных объектов инфраструктуры и гражданского назначения.









