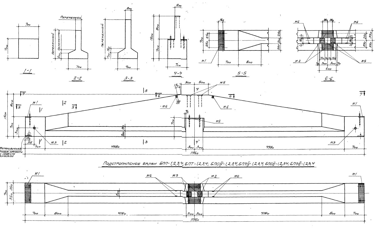
Балка подстропильная БПТ 3 представляет собой железобетонный элемент, который используется для укрепления кровли здания. Она обладает высокой прочностью и устойчивостью к воздействию различных нагрузок, что делает ее незаменимым элементом конструкции.
Балка подстропильная БПТ 3 применяется в строительстве как несущий элемент кровли здания. Она используется для создания прочной и надежной конструкции, способной выдерживать ветровые и снеговые нагрузки. Балка подстропильная также может использоваться для укрепления перекрытий и других конструкций здания, обеспечивая им дополнительную прочность и устойчивость.









