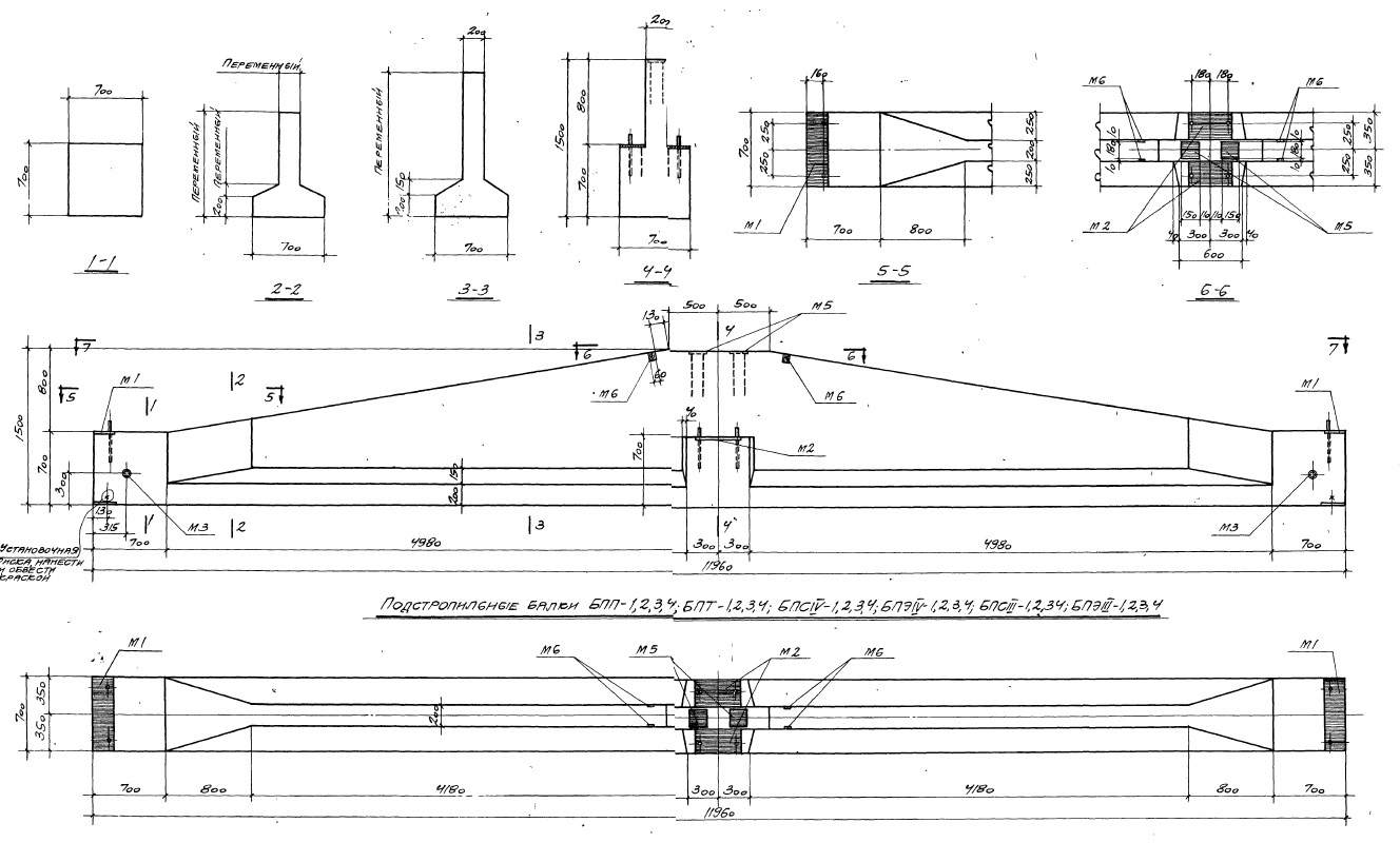
Балка подстропильная БПС III-1 представляет собой железобетонный элемент, который используется для укрепления стропильной системы кровли. Она обладает высокой прочностью и устойчивостью к воздействию внешних нагрузок, что делает ее надежным элементом конструкции.
Балка подстропильная БПС III-1 применяется в строительстве жилых и промышленных зданий для создания прочной и надежной кровли. Она используется как основной элемент стропильной системы, обеспечивая необходимую поддержку и укрепление кровельного покрытия. Балка подстропильная БПС III-1 идеально подходит для строительства крыш с различными формами и наклонами, обеспечивая долговечность и надежность конструкции.









