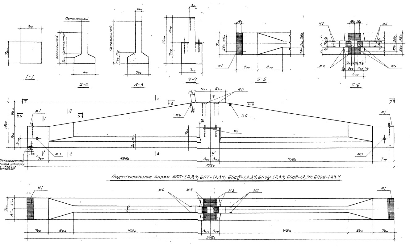
Балка подстропильная БПП 4 к представляет собой железобетонный элемент, который используется для укрепления кровли здания. Она обеспечивает необходимую жесткость и прочность конструкции, а также равномерное распределение нагрузок от кровельного покрытия. Балка имеет специальные отверстия для крепления стропил и обеспечивает надежное крепление кровельных элементов.
Балка подстропильная БПП 4 к применяется в строительстве жилых, коммерческих и промышленных зданий. Она используется для создания каркаса кровли, который обеспечивает необходимую жесткость и прочность всей конструкции. Балки подстропильные широко применяются в строительстве как новых зданий, так и при реконструкции старых зданий. Они обеспечивают надежную защиту от внешних воздействий и увеличивают срок службы кровли.









